Sterrenhuys 35 M2

Sterrenhuys – waar comfort, eenvoud en vrijheid samenkomen onder één dak.
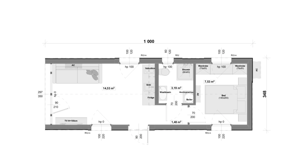
Afmetingen

35M2

27M2

415cm

31,5°-33°
Sterrenhuys
35M2
Sterrenhuys 35 is een hoogwaardige stacaravan, gebouwd op een sterke stalen constructie. De 35 m² woonoppervlakte is optimaal ingericht om comfort en gebruiksgemak te bieden. Sterrenhuys 35 is ontworpen voor het hele jaar door gebruik en beschikt over uitstekende thermische isolatie-eigenschappen.
Een bijzonder voordeel is de mogelijkheid om het huis eenvoudig te verplaatsen naar een andere locatie, wat inspeelt op de flexibiliteit die in deze tijd steeds belangrijker wordt.
De indeling en het interieurontwerp zijn geïnspireerd door het Japanse minimalisme. Dit vertaalt zich in een doordachte ruimtebenutting en een harmonieuze sfeer, waarin rust en verbondenheid met de natuur centraal staan. De combinatie van een stabiele constructie en een ingetogen gebruik van vormen en kleuren geeft Sterrenhuys 35 zijn unieke karakter.
35M2 ÉÉN SLAAPKAMER

35M2 TWEE SLAAPKAMERS




