Maanhuys 35 M2

Maanhuys – waar elegantie, balans en rust samenkomen in één ontwerp.
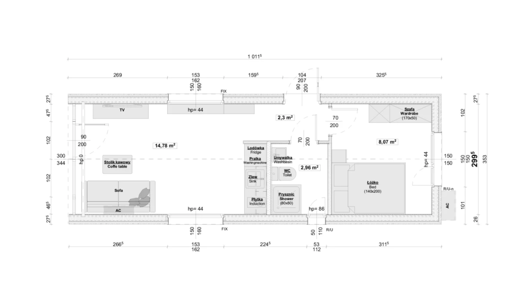
Afmetingen

35M2

27,3M2

340cm

21,8°-38°
Maanhuys
35M2
Maanhuys heeft een slanke en elegante vorm, gebaseerd op een symmetrisch ontwerp dat wordt versterkt door subtiele details. Dit resulteert in een unieke en tijdloze uitstraling die rust en verfijning uitstraalt.
Binnen dit zorgvuldig ontworpen kader zijn hoogwaardige materialen gecombineerd, zoals gevelbekleding van Siberisch larikshout, glas en metaal. Deze samenstelling geeft het gebouw karakter en een moderne uitstraling, zonder zijn natuurlijke verbinding te verliezen.
Het ontwerp van Maanhuys is erop gericht zich harmonieus te voegen naar zijn omgeving. Door het huis naadloos in het landschap te laten opgaan, ontstaat een esthetische beleving die rustgevend en bijzonder is.
Een woning die zelfs de meest veeleisende bewoner zal aanspreken – misschien wel u.
35M2 ÉÉN SLAAPKAMER




